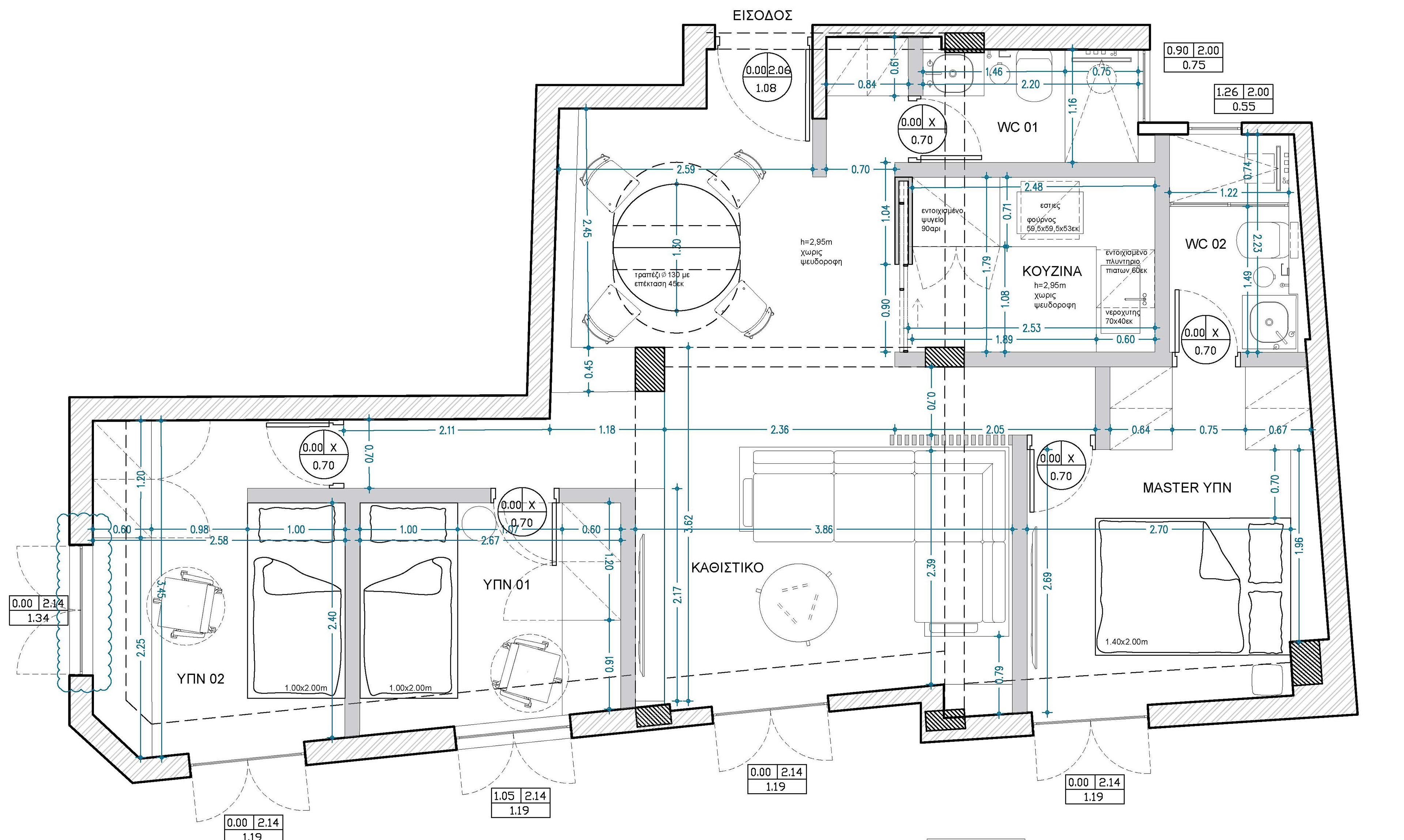
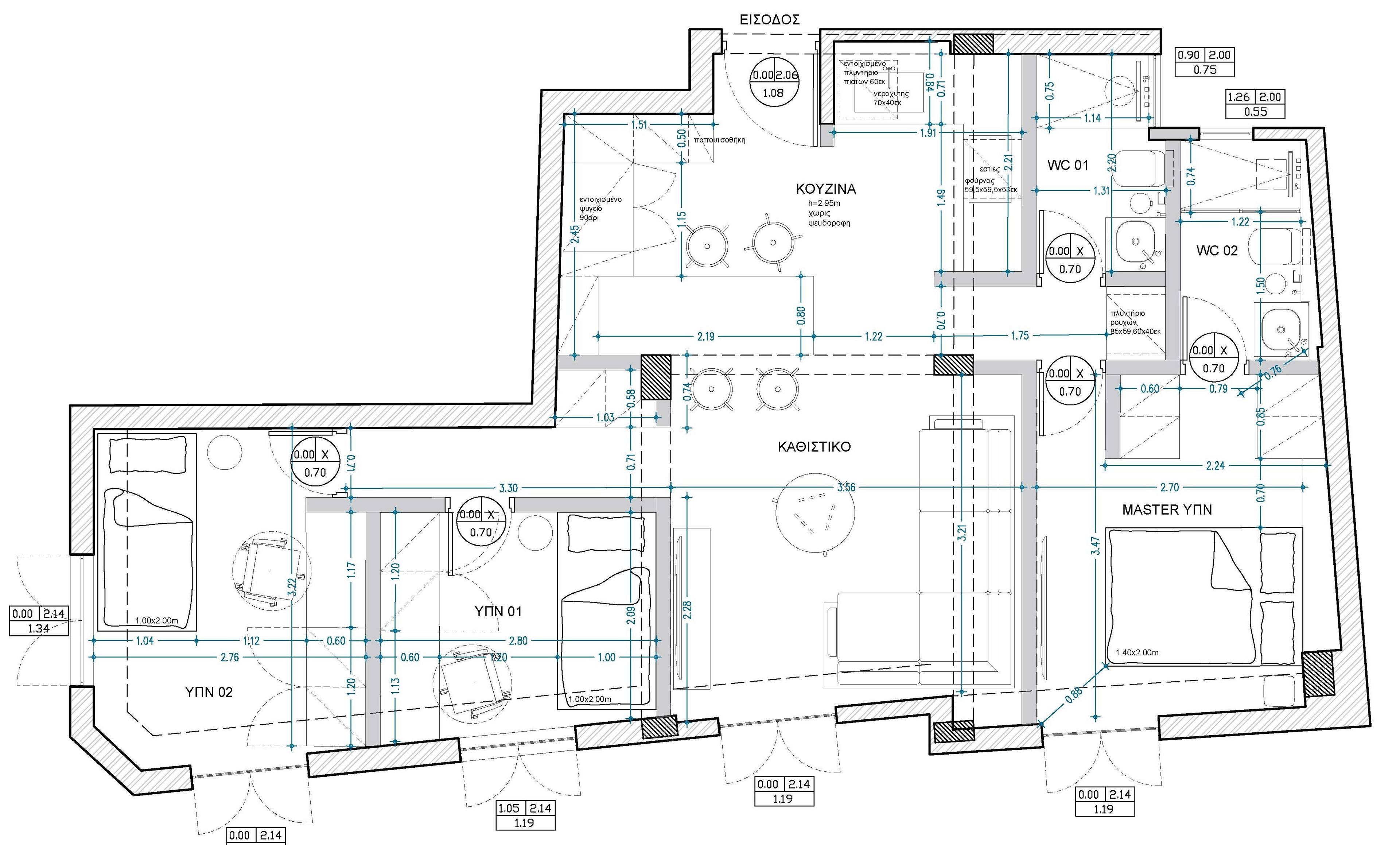
Location: Kato Patisia, Attica Design (Year): 2025 Construction (Year): 2026 Architectural Design: Elina Varouxaki