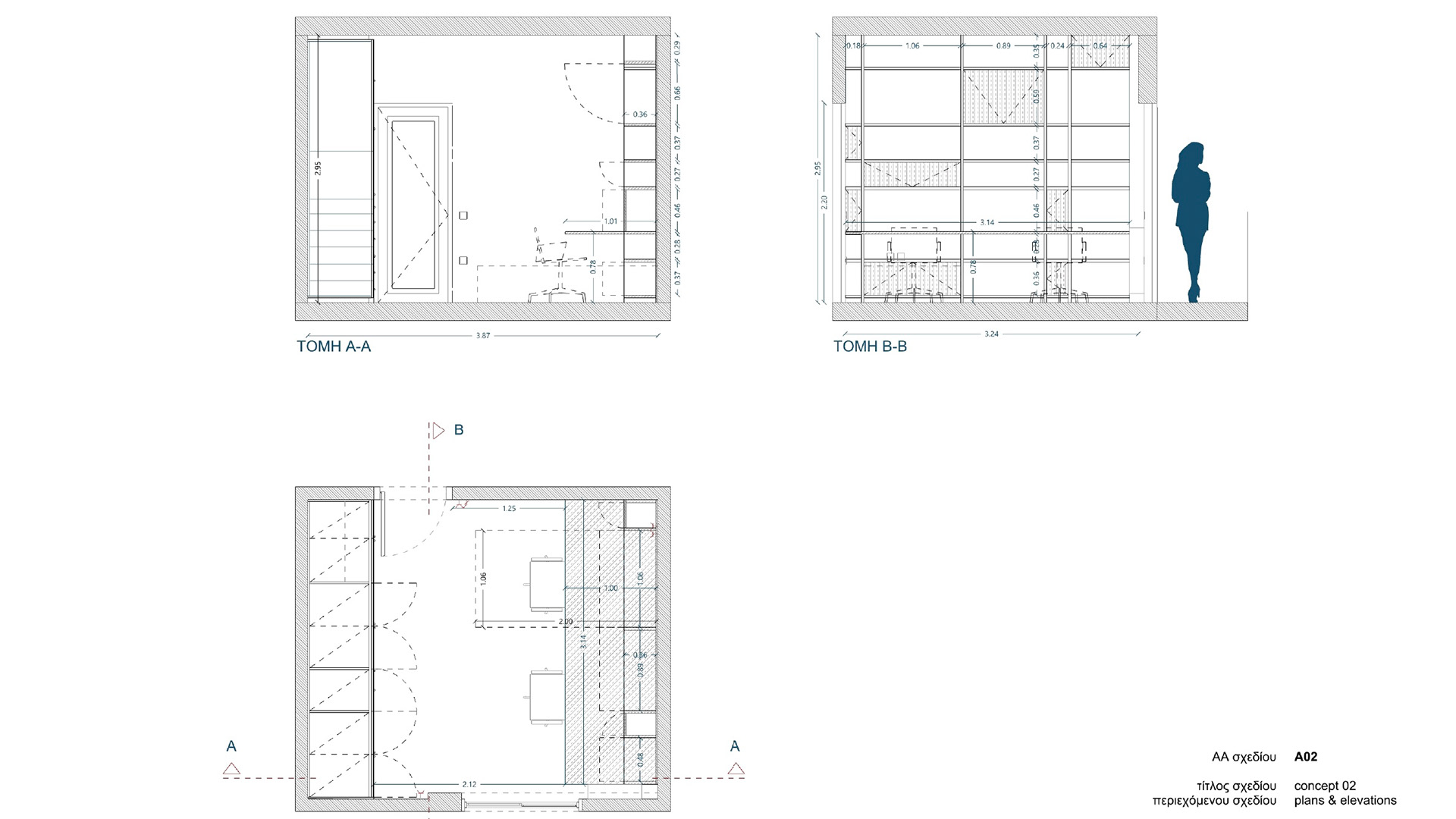
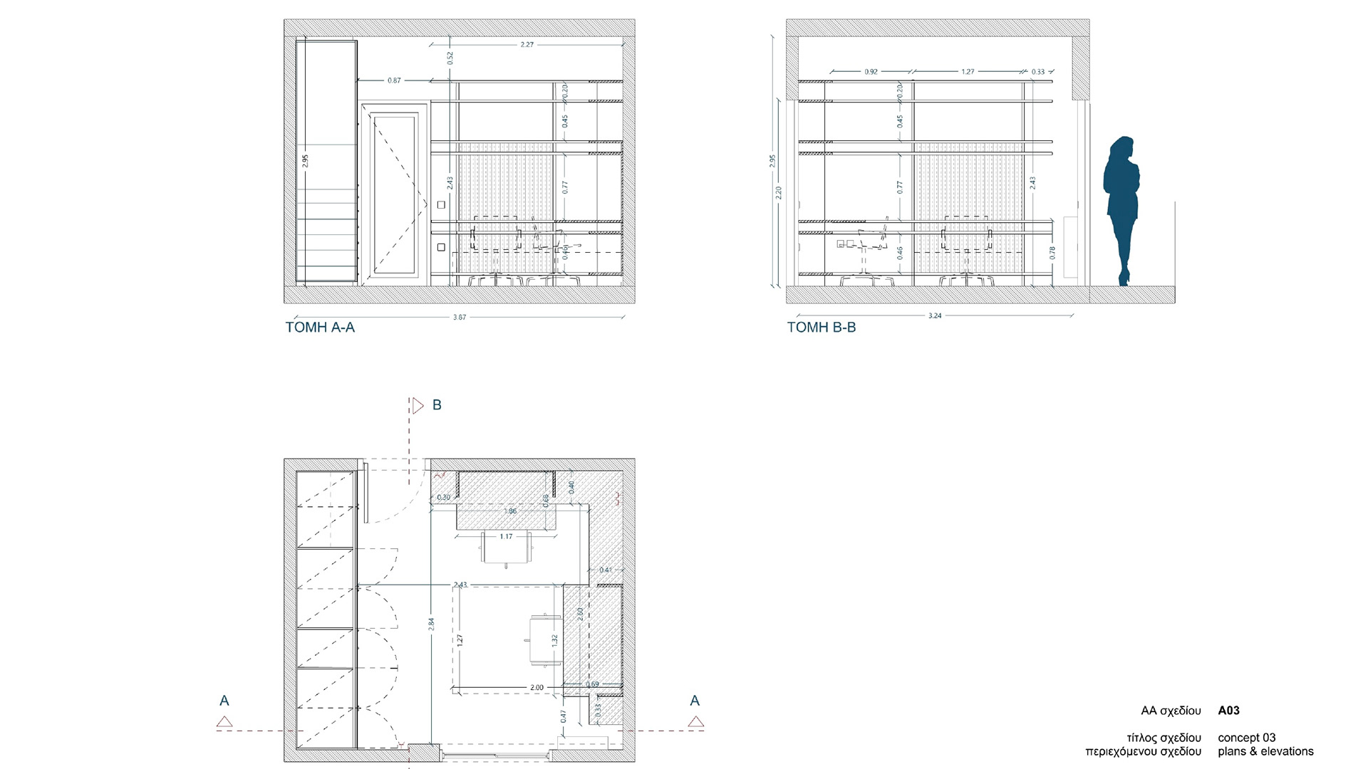
In the heart of Athens, this small bedroom embodies both elegance and adaptability. At its core lies a bespoke furniture piece inspired by Mondrian's geometric style, serving initially as a sophisticated library. Yet, its true brilliance lies in its adaptability: with a simple adjustment, one section can be removed, seamlessly transforming the space into a cozy kids' bedroom when needed. Complemented by soft tones and thoughtful accents, this room harmonizes style with functionality, offering a dynamic yet serene retreat for its inhabitants.
In its versatility, the Mondrian-inspired furniture offers three configurations: one parallel to the room's existing limits, optimizing space while framing the door and closet; another in an L-shaped arrangement, maximizing functionality along two walls; and a third, positioned boldly at the room's center, creating a striking focal point while maximizing floor space. Each configuration seamlessly integrates with the room's layout, ensuring adaptability without compromising on style or utility.
Back to Top