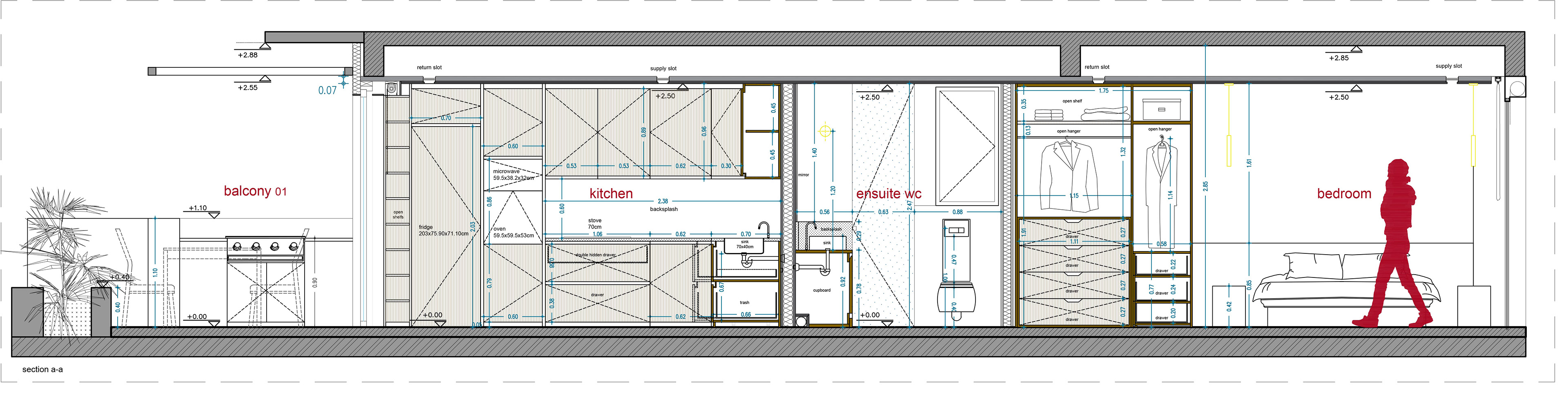
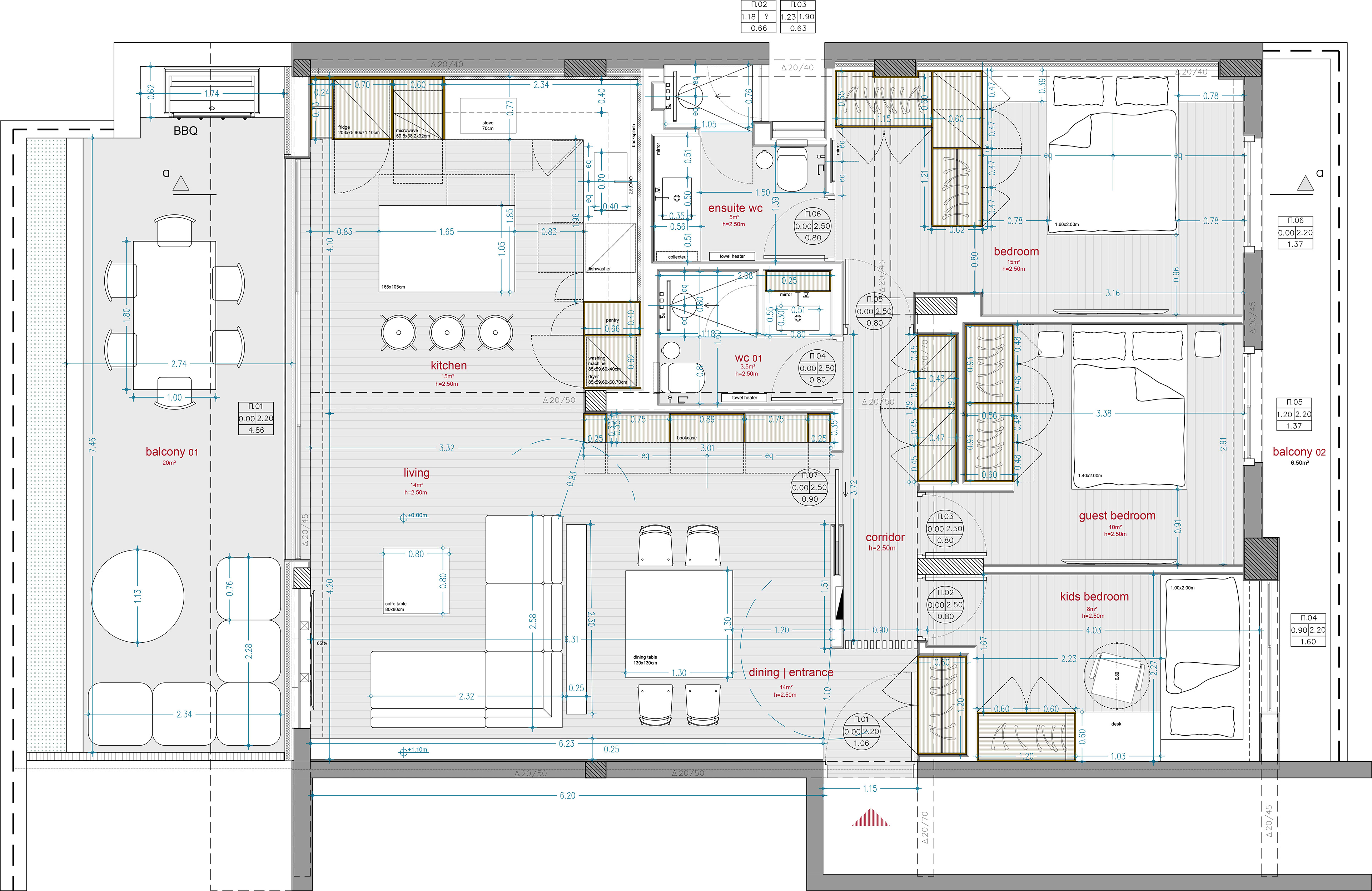
Full Renovation of 110sqm apartment Location: Piraeus, Greece Design (Year): 2024 Architectural Design: Elina Varouxaki Structural Engineering: Vasilis Varouxakis E/M Engineering: Dimitris Varouxakis Participated in Biennale 2025